Special offer.
Red Squirrel at Ecotone Cabins
1 kingsize bedroom (can be twinned) with ensuite shower bathroom
Pine Marten at Ecotone Cabins
2 kingsize bedrooms (can be twinned) with ensuite shower bathrooms
“Our family purchased the forest in 1992, and 3 generations of us live nearby in our own self-built cabins. We run an ecological timber-building company, which allowed us to design and build the cabins entirely ourselves from the ground up. Our family also run an all-season outdoor children’s nursery, a woodland croft/smallholding, and an off-grid permaculture forest garden and outdoor venue here. We seek to bring about wider positive social and ecological change by providing an inspiring exempla of lower impact, environmentally conscientious, community-engaged enterprise and restorative land management, whilst diversifying the woodland at the same time.” The Planterose Family
They love
“Just sitting in front of the floor-to-ceiling windows and watching the trees blow in the wind, a squall pass by, a snow shower fall or the sun dancing on the loch.”
We love
The immersive feel, thanks to all the glass and wood.
You may not love
A 3-night minimum stay. Some noise from the main road during peak seasons (not noticeable indoors). You’ll need a car to get here and explore. Sorry, no pets.
Sustainability.
“The cabins were built using sustainably sourced timber by our own ecological timber building company North Woods Construction, including from trees grown and milled on site. Ecological insulation in the form of sheep wool and wood fibre. Highly energy efficient with deep insulation, great air tightness and renewable heating systems. Waste is separated and recycled, including in-house commercial scale composting. Cleaning products and toiletries are from Miniml, Bio-D and other environmentally responsible producers. We purchase from a selection of environmentally conscious, ethical and local producers/suppliers.”
Surrounds.
- Hire bikes and explore the stunning Highlands landscapes on 2 wheels — choose from road, mountain and e-bikes.
- Swim in Loch Broom and discover the remote coastline and sea lochs around Ullapool. Kayak Summer Isles can kit you up for your adventures.
- The Ceilidh Place in Ullapool started life as a boatshed cafe in 1970. It’s now a cultural hub where you can enjoy music, art, food and drinks.
- Or dine at The Dipping Lugger; a quintessential modern-Scottish hotel. Standing proudly on the shore of Loch Broom, it offers cosy interiors and mountainous views over award-winning seasonal fare.
- Day trip to Skye, Lewis or Harris from Ulapool’s ferry port.
Details.
- A pair of sustainable timber cabins in a forest, side by side
- Red Squirrel: 1 kingsize bedroom (can be twinned) with ensuite shower bathroom
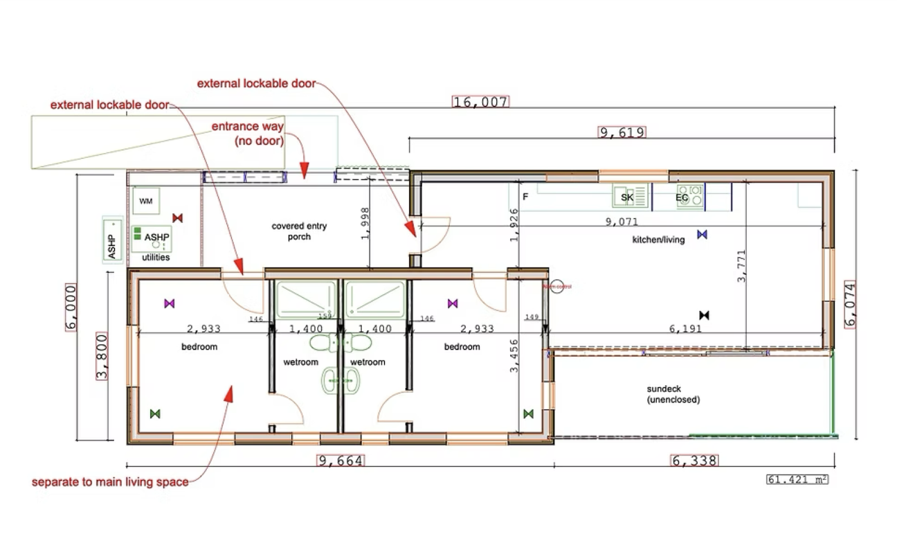
- Pine Marten: 2 kingsize bedrooms (can be twinned) with ensuite shower bathrooms. Parents of young children, please note that to access the second bedroom, you have to go outside onto the covered porch from the kitchen/living room and in again! There is also an external lockable door the other side of the room, but accessing it via the covered porch means you don’t need to go outside.
- Both have:
- Underfloor heating throughout
- Bathrobes and environmentally-friendly refillable toiletries
- Well-equipped kitchen including oven, induction hob and hand blender
- Basic cooking supplies provided and a welcome box of local produce
- Open-plan dining/lounge with board games, cards, books and Smart TV
- Balcony with table and chairs
- Outdoor firepit and hammock
- Yoga mat
- Cot, bedding, high chair and changing unit for 1 baby
- Sorry, no pets allowed
- Onsite children’s outdoor nursery and forest school club (during school holidays)
- The owners live close by and are available by phone should you need them
- Bike hire available locally (3 miles away)
- Drive 7 mins to shops, pubs and seafood restaurants
- Forest Cabins Short Term Let Licence in line with Scotland’s licencing scheme is number HI-10005-F
- Booking conditions: 3-night minimum stay. A £250 security deposit will be required by the owner after booking, and refunded to you following property inspection after your stay
- Remember to pack: slippers (no shoes indoors please), swimming costumes and beach towels, boots or wellies in winter
Non-Refundable
40% deposit, with the balance due 4 weeks prior to stay. All payments are non-refundable.
See our full booking Ts & Cs
FAQs.
Yes. There’s a good gravel vehicle track right to the front doors and a parking space right outside each plus a spare space for visitor parking.
Yes. There’s a dedicated 3kW 13A outdoor socket in the porch areas that is within reach of the parking spaces for most portable domestic (granny) charger cables. There’s also a short specialist heavy-duty extension cable in case the portable charger cable is too short. Ullapool is 2.5 miles away and has 3 separate high-speed chargers at different sites.
Regretfully not.
No. The cabins are highly insulated and have zoned underfloor heating throughout so they are very warm and comfortable, and do not need wood-burning stoves on top. Each also has an outside firepit.
You can, and some guests do. As with most rural areas, it isn’t as easy as it should be, but the owners are happy to try and help with your effort. The main bus route goes from Inverness to Ullapool and it is normally possible to get dropped off at the bottom of the driveway. If you do end up in Ullapool, then there is a local taxi service or the owners can arrange to pick you up.
See our Surrounds section for inspiration. Once you’ve booked, the owners will also send their Digital Guidebook that provides loads of useful information, suggestions and inside tips on things to do, including restaurants and day trips.
There is an off-road route from the cabin to Ullapool that goes along track, footpath and pavement. It takes at least an hour and is usually wet underfoot, so bring good boots. It’s a nice walk and a good way to get to/from Ullapool, but if you are coming or going with your luggage then we would recommend a taxi or asking for a lift from the owners.
We would not consider the cabins to be fully wheelchair accessible, but they may suit people with limited mobility. They have front-door parking & level ground-floor access with no steps. Some doorways are >800mm.
No. The owners do not feel that an electric or non renewably powered hot tub is consistent with a sustainable tourism business.
The cabins and decks are no smoking areas. This includes e-cigarettes/vaping. The hard gravel parking areas are designated for smoking. The cabins are timber and located in a forest, so accidental fire is a big concern!
Still have a question?
Send us a message
